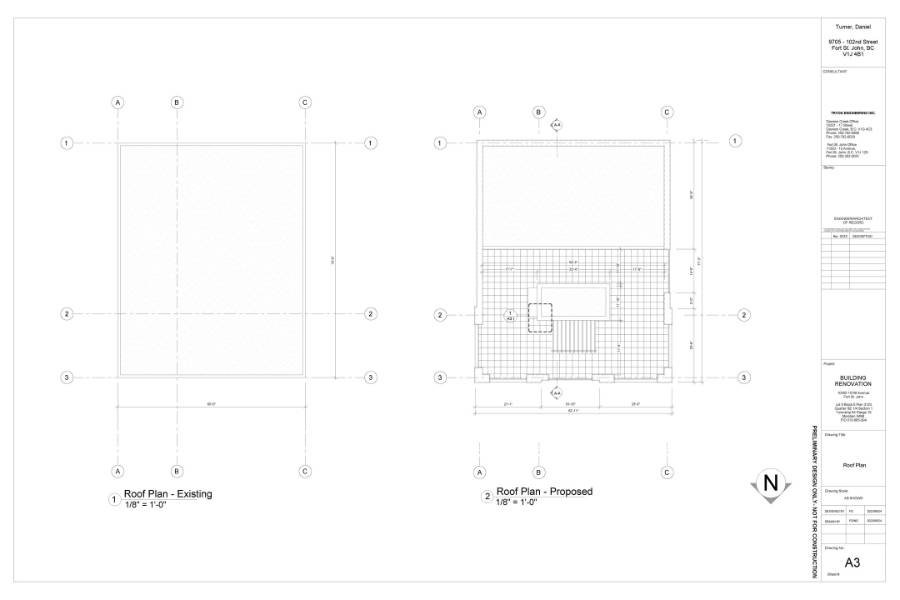
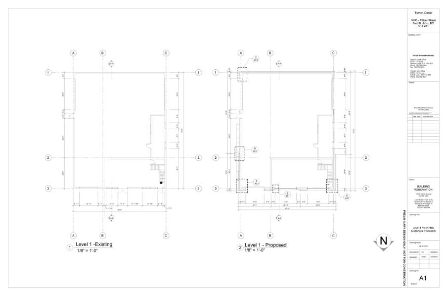
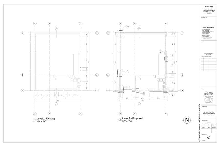
With over 30 years of experience in the field, TradePros has extensive product knowledge about Klad Surfaces’ products. We help bridge the gap between architectural needs and installation techniques by creating detailed, high-quality shop drawings, floorplans, 3D renders, estimates, and quantification.












